SITE PLAN SAMPLES
I’ve included some of the work that I have designed for other clients. Some of the plans have modifications and changes to protect the property owners privacy. These plans have been used to obtain permit approval from the County .
1 ACRE PROPERTY WITH SEPTIC AND SOLAR UTILITIES
36 ACRE PROPERTY WITH DETAIL SECTION
DETAIL SECTION FROM PREVIOUS IMAGE
1 ACRE PROPERTY WITH UTILITIES
1 ACRE PROPERTY - POTENTIAL COMMERCIAL PROPERTY - NOT YET COMPLETE
1 ACRE HOMESTEAD PROPERTY
10 ACRE HOMESTEAD WITH TEST HOLES FOR FUTURE SEPTIC DESIGN PLAN
1 ACRE POTENTIAL FUTURE COMMERCIAL SITE PLAN
PLAN SET DRAWING SAMPLES
As well as a site plan to get you started, I also can do many of the building related drawings the County needs for your house or structure. Most jurisdictions require a permit prior to your build. However, if you have already started a build but do not want to pay an architect thousands of dollars, I may be able to draw them for you. Contact me and let’s talk.
Most counties require around a dozen drawings that need to go through the approval process prior to your build. This is called a plan set. Each step of your build will require plan review and approval as well as an on site inspection as you build your structure or home. The building plans I will draw for you can be submitted to your licensed electrician, solar designer and septic designer for the other permits you will need. I have included some samples below that will give you an idea of what I can do for you.
Structural drawing for a bathroom extension for a previously built home
Floor joist structure for a tiny home
Elevation drawing of a 2 story tiny home
Roof framing structure with connection to top plates and side view
CLICK ON ANY IMAGE TO ZOOM
Elevations drawing for a semi-prefab house structure
Structural drawing of North and South walls for a tiny home
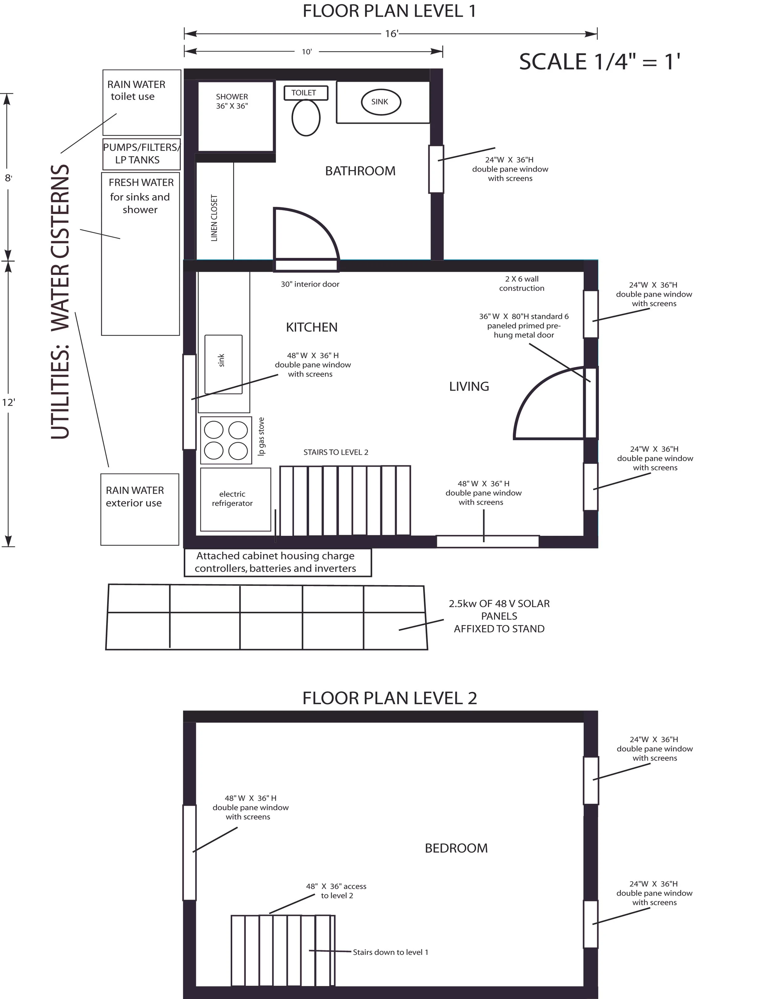
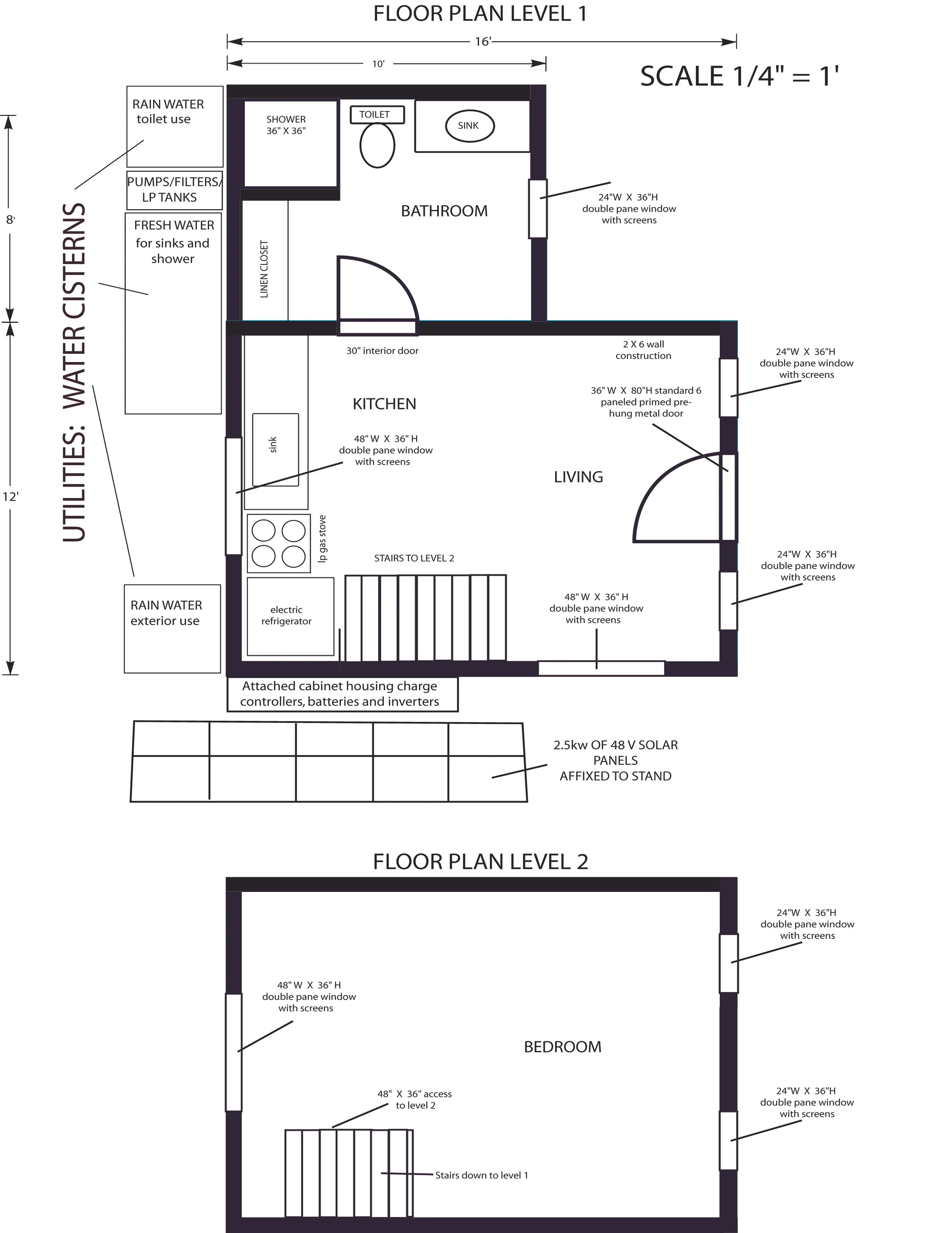
Floor plan for 2 story tiny home
Drawing of floor plan with included electrical components
Drawing of floor plan with included electrical components
Plumbing layout for tiny home